315 Greenway DriveKingman, AZ 86401




Mortgage Calculator
Monthly Payment (Est.)
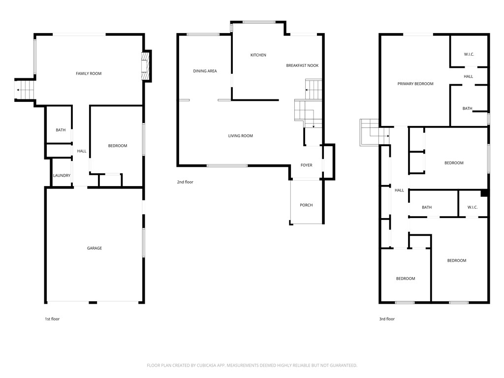
$2,049Unique Tri-level, FIVE bedroom, THREE bathroom home on the 7th Tee of the Cerbat Golf Course in Country Club Estates in Kingman, Arizona. As you enter this home you'll notice the ceramic tiled entry that runs through the kitchen and dining room. New carpet greets you as you step down into the sunken living room to the left. The kitchen is center and features an island cooktop, built in oven, lots of cabinet space and a VIEW of the golf course. Walk down a few steps to the carpeted family room with a lovey fireplace and built in bookcase. Down the hall is a bathroom, one bedroom with built in desk area, laundry and the garage. Go back upstairs and there are FOUR bedrooms and two bathrooms. The primary bedroom has a balcony overlooking the golf course and a walk-in closet, vanity area and a dual sink vanity. The three other bedrooms - two face the front of the home - and one of those has a door to the bathroom direct. Along the hall are THREE separate storage areas: Linen, closet and game closets! The backyard offers a covered area and uncovered areas - and down below there is room for a pool, too!
| 3 months ago | Listing first seen on site | |
| 3 months ago | Listing updated with changes from the MLS® |
Listing information is provided by Participants of the Western Arizona REALTOR Data Exchange. IDX information is provided exclusively for personal, non-commercial use, and may not be used for any purpose other than to identify prospective properties consumers may be interested in purchasing. Information is deemed reliable but not guaranteed. Copyright 2026, Western Arizona REALTOR Data Exchange.
Data last updated at: 2026-04-21 06:57 PM UTC


Did you know? You can invite friends and family to your search. They can join your search, rate and discuss listings with you.