3862 N Melody StreetKingman, AZ 86409




Mortgage Calculator
Monthly Payment (Est.)
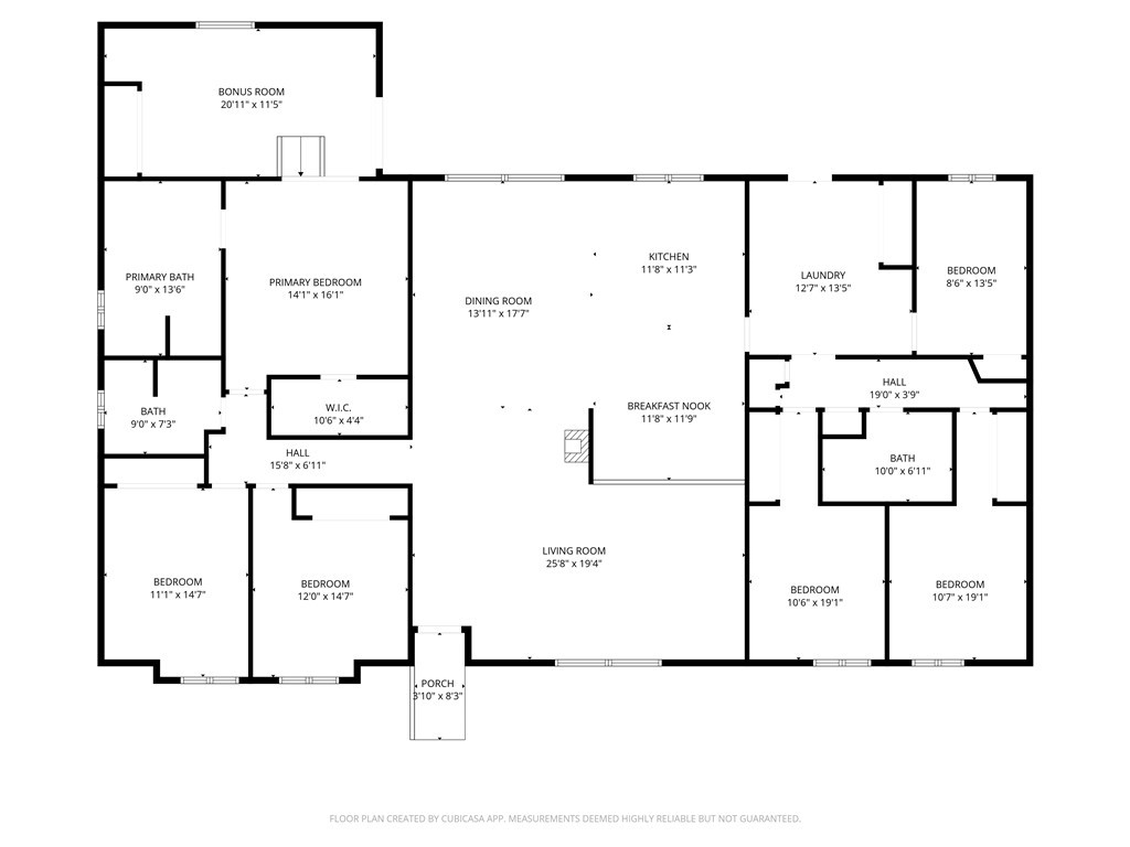
$2,167Rare Find. Two Homes on One Acre Inside City Limits! This unique property offers incredible versatility with two separate homes on a spacious 1-acre lot. Perfect for multi-generational living, an investment opportunity, or simply enjoying the extra space. The main home features 6 bedrooms, 3 bathrooms, and 3,019 sq. ft. of living space, including a large bonus room off the primary suite. The open and roomy kitchen, dining room, breakfast nook and living room are perfect for entertaining and gathering. With fresh paint, new dual-pane windows, some updated vinyl plank flooring, and solar (SELLER WILL PAY OFF LEASE AT CLOSING), it blends comfort with efficiency. A cozy wood-burning stove (chimney connection needed) adds charm. The second home includes 3 bedrooms, 1 bathroom, and 953 sq. ft., plus an impressive 700+ sq. ft. attached garage/shop ideal for hobbies, storage or extra parking. Outdoor living is just as impressive: bring your horses, enjoy mature fruit and nut trees, and take advantage of RV parking and a large double carport. This property is a rare opportunity to own a versatile estate with country living vibes right inside the city limits!
| 3 weeks ago | Price changed to $474,900 | |
| 5 months ago | Listing first seen on site | |
| 5 months ago | Listing updated with changes from the MLS® |
Listing information is provided by Participants of the Western Arizona REALTOR Data Exchange. IDX information is provided exclusively for personal, non-commercial use, and may not be used for any purpose other than to identify prospective properties consumers may be interested in purchasing. Information is deemed reliable but not guaranteed. Copyright 2026, Western Arizona REALTOR Data Exchange.
Data last updated at: 2026-02-21 08:19 PM UTC


Did you know? You can invite friends and family to your search. They can join your search, rate and discuss listings with you.